Álomból otthon 1.

Elérkezett az idő, hogy új fejezetet nyissak az életemben, így megvettem egy kis telket, és álmodtam egy nagyot. 🙂

A ház tervezésekor egy építésszel felvettem a kapcsolatot, akivel közösen kezdtük el kialakítani az elképzeléseimet. A nagy, egybefüggő terek állnak hozzám közel, ezért az alaprajzon is ez köszön vissza: a konyha, az étkező és a nappali egy közös, tágas térben kapott helyet, hatalmas nyílászárókkal.

Régi álmom volt egy saját gardrób, így ennek is külön teret szántunk a tervezés során. Mindig jó érzés, amikor egy régóta dédelgetett ötlet végül a tervrajzon is megjelenik. 🙂

A nappali fölött a födémet megtörtük, így egy nagy légtér alakult ki. Ez nemcsak látványosabbá teszi a teret, hanem még világosabb, tágasabb érzetet is ad a nappalinak.

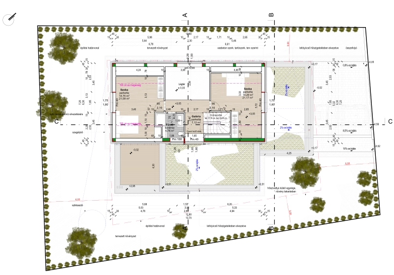
Az emeleten két nagy szoba kapott helyet egy fürdőszobával. A konyha–étkező, valamint a garázs egy része fölött pedig teraszokat alakítottunk ki, így több helyen is lehetőség lesz kint pihenni vagy élvezni a friss levegőt. 🙂

Földszint

Emelet

Tarts velem, ha érdekel, hogyan lesz a tervrajzokból valódi otthon, és kíváncsi vagy a kivitelezés folyamatára is. 🙂

További bejegyzések:

Kis lakás, nagy komfort

Kis tér, nagy kihívás Sokan azt gondolják, hogy a kis lakás korlátoz, de valójában a megfelelő tervezéssel egy kis tér

Miért lettem lakberendező

Amikor gyerek voltam, sokat költöztünk, és mindig új szobám lett. A legjobb része számomra az volt, hogy én rendezhettem be